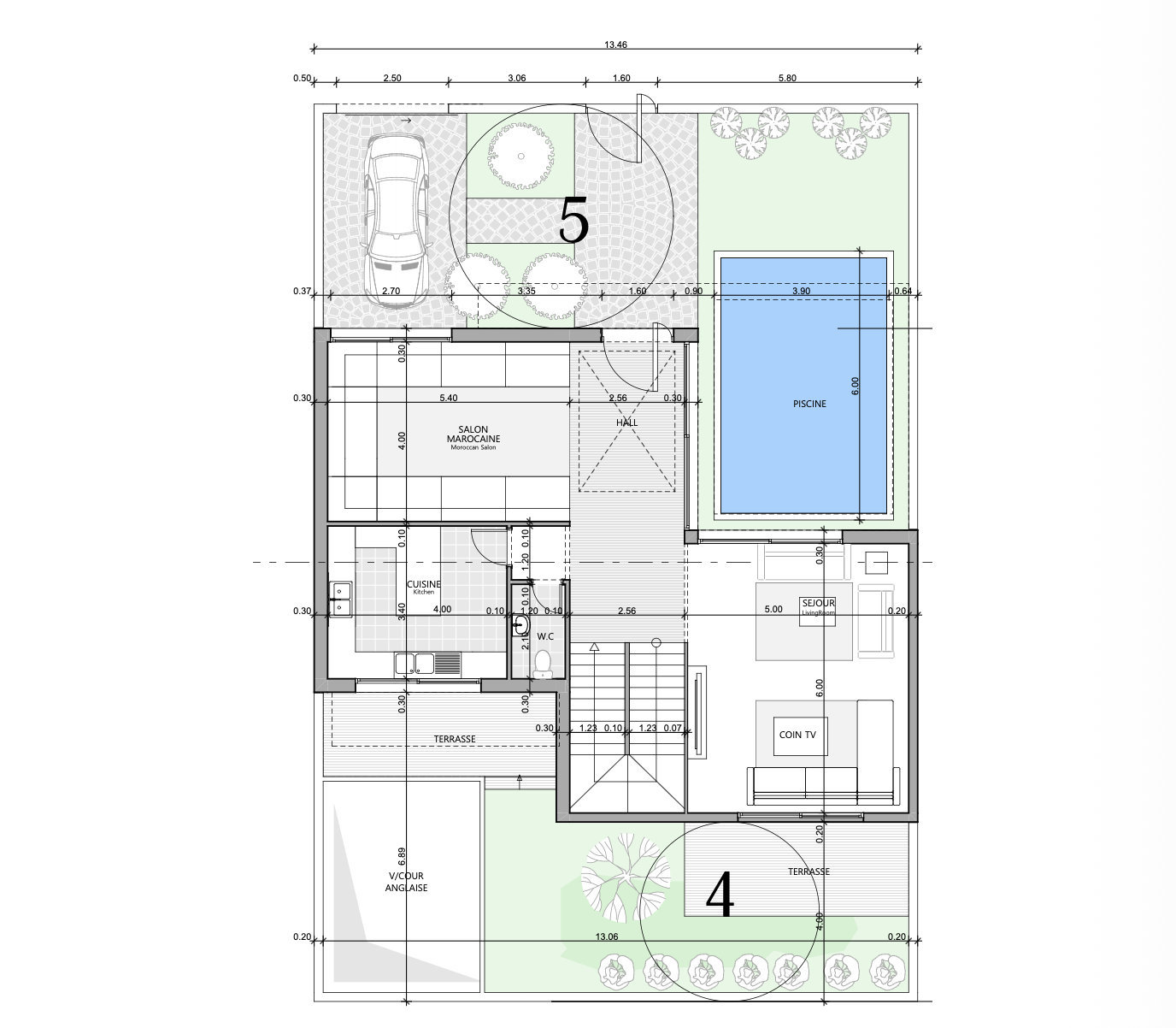
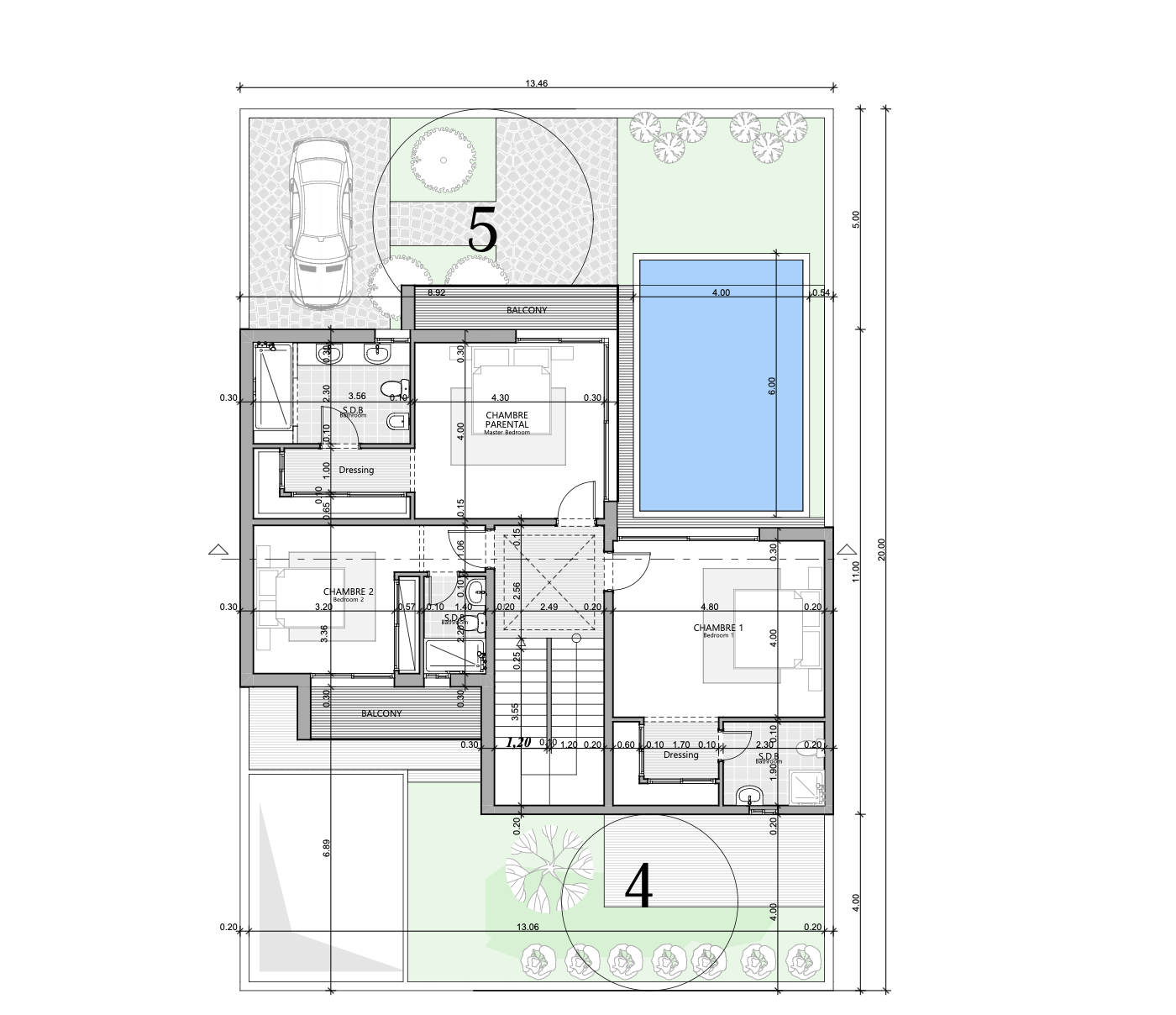
Description
Située au sein de la résidence Jnane Oum El Ghite, à Chrifia, à seulement quelques minutes de Marrakech, la Villa Type C se distingue par une conception équilibrée, offrant davantage d’espace et de confort tout en conservant une architecture contemporaine élégante.
Implantée sur des terrains d’environ 320 à 350 m² (selon lots), la Villa Type C développe une surface bâtie d’environ 260 à 280 m², répartie sur trois niveaux, avec une organisation pensée pour un usage familial confortable :
Documents du Bien
Détails
Référence 20048
4
Chambres
4
Salles de bain
Surface habitable 234 m²
Surface du terrain 269 m²
Année de construction 2026
Caractéristiques
- Accès facile aux axes principaux
- Architecture contemporaine
- Chambres spacieuses
- Espaces de vie ouverts
- Grandes ouvertures vitrées
- Jardin privatif
- Quartier résidentiel à quelques minutes de Marrakech
- Résidence calme et sécurisée
- Sous-sol aménageable (selon option)
- Stationnement privé
- Suite parentale avec salle de bain
- Volumes lumineux et bien proportionnés


